Gepflegte Gewerbehalle mit über 1.000 m² Nutzfläche und idealen Lager- und Produktionsbedingungen in Offenbach
63071 Offenbach, Lager zur Miete
Kontaktdaten
-
NameFrau Fabienne Distel
-
FirmaLebherz Immobilien Offenbach
-
AdresseAschaffenburger Str. 44
63073 Offenbach am Main / Bieber -
E-Mail Zentrale
-
Tel. Zentrale
-
Fax00496983009711
Objektdaten
-
Objekt ID392
-
ObjekttypenHalle/Lager/Produktion, Lager
-
Adresse63071 Offenbach
-
EtageEG
-
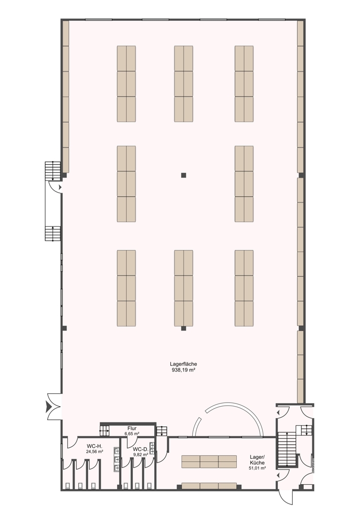
Gesamtfläche ca.1.033 m²
-
Lagerfläche ca.989 m²
-
Baujahr1972
-
Zustandrenovierungsbedürftig
-
Stellplätze gesamt3
-
Nettokaltmiete6.500,00 EUR
-
Summe Miete netto6.500,00 EUR
-
Betriebskosten brutto1.000,00 EUR
-
Mieterprovision (gewerblich)3 NKM zzgl. MwSt
-
Kaution19.500,00 EUR
-
Kaltmiete6.500,00 EUR
-
Warmmiete7.500,00 EUR (Heizkosten enthalten)
Ausstattung / Merkmale
- Estrichboden
- Gewerblich nutzbar
Energieausweis
-
EnergieausweistypVerbrauchsausweis
-
Ausstellungsdatumab dem 1.5.2014
-
Gültig bis25.01.2032
-
GebäudeartNichtwohngebäude
-
Baujahr lt. Energieausweis1972
-
PrimärenergieträgerÖl
-
Endenergieverbrauch198,00 kWh/(m²·a)
-
Endenergieverbrauch Wärme198,00 kWh/(m²·a)
-
EnergieeffizienzklasseF
Objektbeschreibung
Beschreibung
Die hier angebotene Lagerhalle in Offenbach überzeugt durch ihre großzügige Gesamtfläche von rund 1.033 m² und bietet vielseitige Nutzungsmöglichkeiten für Unternehmen unterschiedlichster Branchen. Das Gebäude wurde im Jahr 1972 errichtet und präsentiert sich in einem soliden, gepflegten Zustand.
Besonders hervorzuheben ist der ausgezeichnete Lichteinfall durch die Glasdeckenplatten, die die gesamte Fläche mit natürlichem Tageslicht versorgen und so eine angenehme Arbeitsatmosphäre schaffen. Der Zugang erfolgt über einen separaten Eingang für Mitarbeiter sowie ein großes Tor, das eine bequeme Anlieferung und Abholung von Waren ermöglicht. LKWs können direkt vor der Halle halten, sodass auch größere Lieferungen problemlos abgewickelt werden können.
Die Aufteilung der Fläche ist funktional gestaltet: Neben der großzügigen Hauptlagerfläche steht ein separater Raum zur Verfügung, der ehemals als Küche genutzt wurde. Dieser kann nach Bedarf wieder als Küche, Aufenthaltsraum oder Bürofläche genutzt werden. Zudem sind getrennte WC-Anlagen für Damen und Herren vorhanden, was den täglichen Betrieb komfortabel unterstützt.
Darüber hinaus stehen drei KFZ-Stellplätze an dem Gebäude zur Verfügung, die bereits im Mietpreis enthalten sind. Eine Untervermietung einzelner Flächen ist grundsätzlich möglich und bietet zusätzliche Flexibilität in der Nutzung.
Insgesamt präsentiert sich diese Lagerhalle als helle, vielseitig nutzbare Gewerbefläche in verkehrsgünstiger Lage Offenbachs – ideal für Unternehmen, die Wert auf Funktionalität, gute Erreichbarkeit und ein angenehmes Arbeitsumfeld legen.
Lassen Sie sich diese Chance nicht entgehen – entdecken Sie das Potenzial dieser Immobilie und machen Sie sie zu Ihrem neuen Unternehmensstandort.
Wir freuen uns auf Sie!
Sonstige Informationen
- Die Fläche wird ausschließlich für Lager- und Produktionszwecke vermietet.
- Der Mietvertrag soll eine Laufzeit von zwei Jahren haben und sich jeweils um zwei weitere Jahre verlängern.
- Eine Untervermietung ist nach vorheriger Absprache grundsätzlich möglich.
Lage
Offenbach – Frankfurt ganz nah
Die Stadt Offenbach am Main liegt unmittelbar anschließend an Frankfurt am Main am südlichen Mainufer. Mit ihren ca. 140.000 Einwohnern ist sie Hessens fünftgrößte Stadt und braucht sich nicht hinter dem großen Nachbarn zu verstecken. Die Stadt profitiert von Ihrer Lage in vielerlei Hinsicht, der Flughafen und die Frankfurter Innenstadt sind von Offenbach aus schneller zu erreichen als aus manchen Frankfurter Stadtteilen.
Offenbach ist eine industriell geprägte Großstadt, die allerdings bereits Residenz der Isenburgischen Grafen war und somit auch einiges an Geschichte vorweisen kann. Zahlreiche historische Bauten finden sich in der Stadt.
An Möglichkeiten einzukaufen oder sich zu erholen mangelt es Offenbach auch nicht. Die Innenstadt mit zahlreichen Geschäften und Restaurants bietet sich hierzu an. Der weitläufige Wald im Süden der Stadt und zahlreiche Parks bieten Möglichkeiten, sich in der Natur zu erholen.
Auch über Bildungseinrichtungen verfügt die Stadt in großem Maße: 13 Grundschulen, 10 weiterführende Schulen, vier Privatschulen, drei sonderpädagogische Förderschulen und vier berufliche Schulen sind im Stadtgebiet vorhanden.
Grundschule 2,20 km | Realschule 2,30 km | Gymnasium 2,90 km | Autobahn 4,90 km | Zentrum 2,80 km
Die dargestellte Position der Immobilie ist nur eine ungefähre Angabe.

















