Gewerbehalle in Offenbach – ca. 320 m² für Lager und / oder Produktion
63071 Offenbach, Lagerfläche zur Miete
Kontaktdaten
-
NameFrau Fabienne Distel
-
FirmaLebherz Immobilien Offenbach
-
AdresseAschaffenburger Str. 44
63073 Offenbach am Main / Bieber -
E-Mail Zentrale
-
Tel. Zentrale
-
Fax00496983009711
Objektdaten
-
Objekt ID371
-
ObjekttypenHalle/Lager/Produktion, Lagerfläche
-
Adresse63071 Offenbach
-
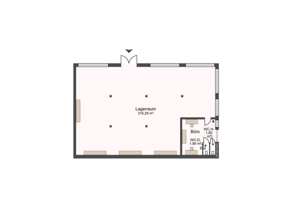
Gesamtfläche ca.319,88 m²
-
Lagerfläche ca.316,28 m²
-
Zimmer2
-
Baujahr1972
-
Zustandgepflegt
-
Stellplätze gesamt2
-
Nettokaltmiete2.000,00 EUR
-
Summe Miete netto2.000,00 EUR
-
Betriebskosten brutto150,00 EUR
-
Mieterprovision (gewerblich)3 NKM zzgl. MwSt
-
Kaution6.000,00 EUR
-
Kaltmiete2.000,00 EUR
-
Warmmiete2.150,00 EUR
Ausstattung / Merkmale
- Gewerblich nutzbar
Energieausweis
-
EnergieausweistypVerbrauchsausweis
-
Ausstellungsdatumab dem 1.5.2014
-
Gültig bis25.01.2032
-
GebäudeartNichtwohngebäude
-
Baujahr lt. Energieausweis1972
-
PrimärenergieträgerÖl
-
Endenergieverbrauch198,00 kWh/(m²·a)
-
Endenergieverbrauch Wärme198,00 kWh/(m²·a)
-
EnergieeffizienzklasseF
Objektbeschreibung
Beschreibung
Die angebotene Lager- bzw. Produktionsfläche befindet sich im Souterrain eines im Jahr 1972 erbauten Gebäudes und umfasst insgesamt ca. 320m². Trotz der Lage im Untergeschoss ist der Zugang ebenerdig und somit bequem befahrbar, was eine reibungslose Anlieferung und vielseitige Nutzung ermöglicht. Die Halle eignet sich hervorragend für Lagerzwecke, leichte Produktion oder eine Kombination beider Nutzungsarten.
Aktuell ist ein Büroraum vorhanden, der sich ideal für administrative Aufgaben oder als Besprechungsraum nutzen lässt. Die restliche Fläche ist offen gehalten und bietet dem Mieter die Möglichkeit, weitere Räume nach Bedarf selbst mittels Trockenbauwänden zu gestalten – ganz nach den individuellen Anforderungen und betrieblichen Abläufen. Sanitäre Anlagen sind vorhanden und werden derzeit vom Eigentümer vollständig modernisiert.
Die Immobilie bietet eine praktische, flexibel nutzbare Raumstruktur in einem gepflegten, dem Baujahr entsprechenden Zustand – ideal für Betriebe mit individuellen Anforderungen an Lager und Arbeitsbereiche.
Zum Angebot gehören außerdem zwei PKW-Stellplätze, die sich direkt am Objekt befinden und eine komfortable Parksituation für Mitarbeiter oder Kunden ermöglichen.
Wenn Sie anpassungsfähige Gewerbeflächen in verkehrsgünstiger Lage suchen, freuen wir uns auf Ihre Anfrage und vereinbaren gerne einen persönlichen Besichtigungstermin.
Wir freuen uns auf Sie!
Sonstige Informationen
- Die Fläche wird ausschließlich für Lager- und Produktionszwecke vermietet.
- Die Toiletten werden vom Eigentümer erneuert.
- Die Fläche ist nicht beheizt.
- Der Mietvertrag soll eine Laufzeit von zwei Jahren haben und sich jeweils um zwei weitere Jahre verlängern.
Lage
Offenbach – Frankfurt ganz nah
Die Stadt Offenbach am Main liegt unmittelbar anschließend an Frankfurt am Main am südlichen Mainufer. Mit ihren ca. 140.000 Einwohnern ist sie Hessens fünftgrößte Stadt und braucht sich nicht hinter dem großen Nachbarn zu verstecken. Die Stadt profitiert von Ihrer Lage in vielerlei Hinsicht, der Flughafen und die Frankfurter Innenstadt sind von Offenbach aus schneller zu erreichen als aus manchen Frankfurter Stadtteilen.
Offenbach ist eine industriell geprägte Großstadt, die allerdings bereits Residenz der Isenburgischen Grafen war und somit auch einiges an Geschichte vorweisen kann. Zahlreiche historische Bauten finden sich in der Stadt.
An Möglichkeiten einzukaufen oder sich zu erholen mangelt es Offenbach auch nicht. Die Innenstadt mit zahlreichen Geschäften und Restaurants bietet sich hierzu an. Der weitläufige Wald im Süden der Stadt und zahlreiche Parks bieten Möglichkeiten, sich in der Natur zu erholen.
Auch über Bildungseinrichtungen verfügt die Stadt in großem Maße: 13 Grundschulen, 10 weiterführende Schulen, vier Privatschulen, drei sonderpädagogische Förderschulen und vier berufliche Schulen sind im Stadtgebiet vorhanden.
Grundschule 2,20 km | Realschule 2,30 km | Gymnasium 2,90 km | Autobahn 4,90 km | Zentrum 2,80 km
Die dargestellte Position der Immobilie ist nur eine ungefähre Angabe.








