Wohn- und Geschäftshaus im Herzen von Seligenstadt
63500 Seligenstadt, Haus zum Kauf
Kontaktdaten
-
NameHerr Florian Lebherz
-
FirmaLebherz Immobilien
-
AdresseBahnhofstraße 1
63500 Seligenstadt -
E-Mail Zentrale
-
Tel. Zentrale
Objektdaten
-
Objekt ID384
-
ObjekttypHaus
-
Adresse63500 Seligenstadt
-
Wohnfläche ca.89 m²
-
Grundstück ca.361 m²
-
Nutzfläche ca.205,33 m²
-
Zimmer4
-
Schlafimmer2
-
Badezimmer1
-
Separate WC2
-
HeizungsartZentralheizung
-
Wesentlicher EnergieträgerGas
-
Zustandgepflegt
-
Statusvermietet
-
Stellplätze gesamt3
-
Kaufpreis449.000 EUR
-
Käuferprovision5,95% inkl. MwSt.
Ausstattung / Merkmale
- Gewerblich nutzbar
- Haustiere erlaubt
- Separates WC
Objektbeschreibung
Beschreibung
Im Herzen der historischen Altstadt von Seligenstadt präsentiert sich dieses charmante Wohn- und Geschäftshaus mit vielseitigen Nutzungsmöglichkeiten. Die Immobilie besteht aus drei separaten Einheiten und vereint auf gelungene Weise attraktiven Wohnraum mit funktionalen Gewerbeflächen – ideal für Eigennutzer, Investoren oder Unternehmer, die Wohnen und Arbeiten unter einem Dach verbinden möchten.
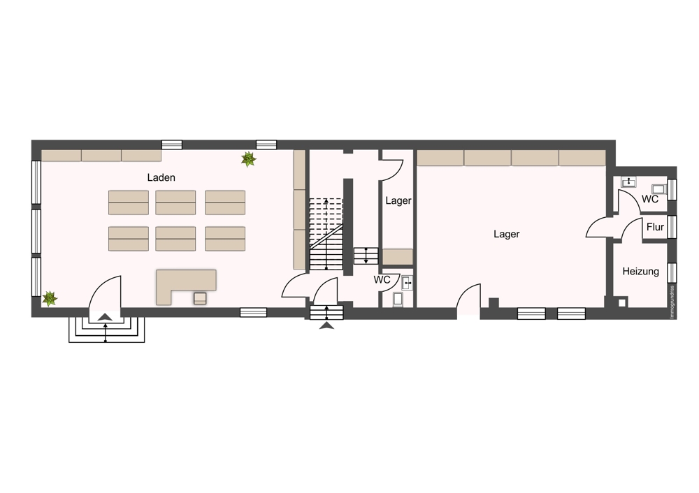
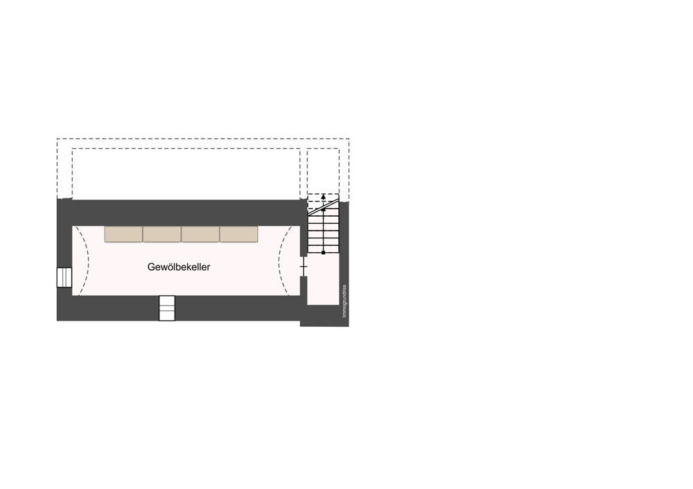
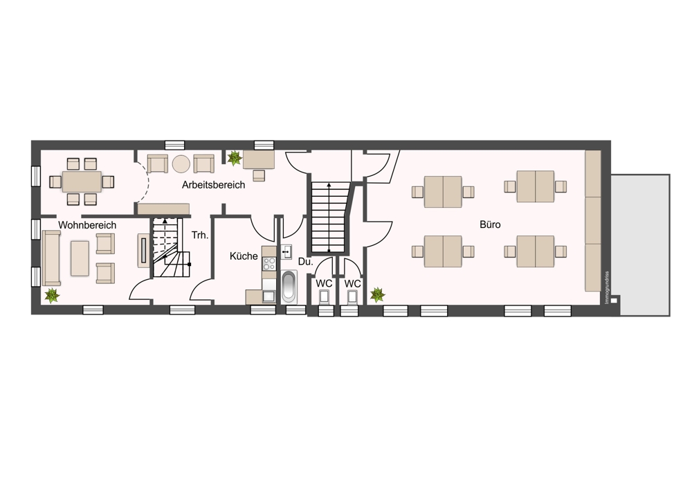
Im Erdgeschoss befindet sich eine großzügige Ladeneinheit mit ca. 69 m² Nutzfläche, die dank ihrer großen Schaufensterfront eine hervorragende Sichtbarkeit und ideale Voraussetzungen für Einzelhandel, Dienstleistungen oder Büroarbeit bietet. Angrenzend liegt ein separater Lagerraum mit ca. 49 m², der zusätzlichen Stauraum schafft und die Flexibilität der Nutzung erweitert.
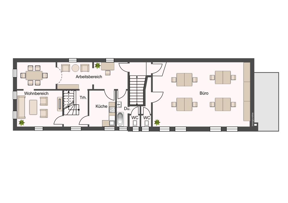
Im 1. Obergeschoss befindet sich ein Büro mit einer Fläche von ca. 59 m², das derzeit vom Mieter der Ladeneinheit genutzt wird. Die Einheit lässt sich bei Bedarf auch zu Wohnraum umgestalten, was attraktive Möglichkeiten zur Erweiterung oder Neuaufteilung der Wohnfläche eröffnet – sei es als kleine Einliegerwohnung, Homeoffice oder als Ergänzung zur darüberliegenden Wohneinheit.
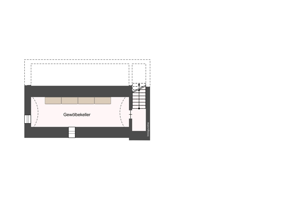
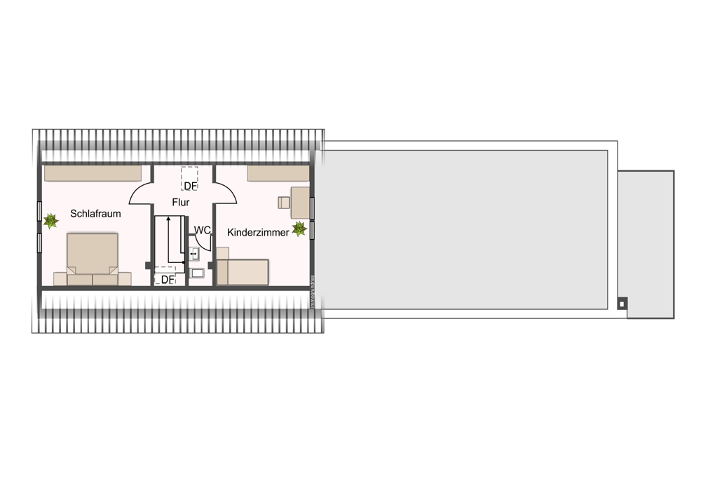
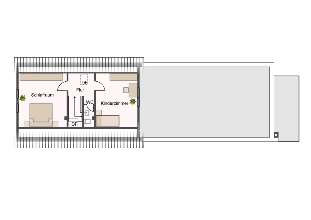
Ebenfalls im 1. Obergeschoss beginnt die gepflegte Maisonette-Wohnung mit insgesamt ca. 89m² Wohnfläche, die sich über zwei Ebenen erstreckt. Die erste Wohnebene mit ca. 58m² umfasst ein großzügiges Wohnzimmer mit angrenzendem Essbereich, eine separate Küche sowie ein helles Tageslichtbad mit Badewanne. Der sichtbare Holzbalkenbestand verleiht dem Wohnraum einen besonderen Charme und unterstreicht den historischen Charakter des Hauses. Über eine innenliegende Treppe gelangt man ins Dachgeschoss der Wohnung, das eine Fläche von ca. 31 m² umfasst. Hier befinden sich ein geräumiges Elternschlafzimmer, ein Kinderzimmer sowie eine kleine Abstellkammer, die zusätzlichen Stauraum bietet.
Das Wohn- und Geschäftshaus befindet sich in einem gepflegten Zustand und überzeugt nicht nur durch seine zentrale Lage in der lebendigen Innenstadt von Seligenstadt, sondern auch durch die gelungene Kombination aus historischer Bausubstanz und moderner Nutzbarkeit. Die Immobilie eignet sich ideal als Kapitalanlage mit solider Mieterstruktur oder zur Eigennutzung mit vielfältigen Entwicklungsmöglichkeiten.
Bei Interesse stellen wir Ihnen gerne Bilder der Ladeneinheit vor der aktuellen Vermietung zur Verfügung. Auch die aktuellen Mieteinnahmen können auf Anfrage eingesehen werden.
Gerne vereinbaren wir mit Ihnen einen individuellen Besichtigungstermin. Wir freuen uns auf Sie!
Lage
Lage – Seligenstadt am Main
Das „Städtchen“ am Main mit viel Geschichte
Seligenstadt liegt etwa 25 km östlich von Frankfurt am Main, ziemlich genau auf der Mitte zwischen Hanau und Aschaffenburg. Die Stadt besteht aus den drei Stadtteilen Seligenstadt, Froschhausen und Klein-Welzheim. In der Kernstadt befindet sich die liebevoll gepflegte Altstadt mit zahlreichen Fachwerkhäusern, der alten Benediktinerabtei mit ihrer das Stadtbild prägenden Basilika und zahlreichen weiteren historischen Gebäuden. Auch die anderen Stadtteile haben viel von ihrem historischen Charme bewahrt.
Das Mainufer mit seinem Rad- und Fußweg sowie der Stadtwald bieten ausreichend Möglichkeiten sich in der Natur zu erholen. In der näheren Umgebung locken im Sommer zahlreiche Badeseen und das stadteigene Freibad zur Erfrischung viele Besucher an. Die Stadt selbst verfügt über ausgezeichnete Einkaufsmöglichkeiten mit kleinen Läden aber auch größeren Kaufhäusern und Supermärkten. Auch für das Wohl der Kinder bieten die Seligenstädter Bildungseinrichtungen hervorragende Möglichkeiten, mit dem Einhard-Gymnasium, der Merian-Gesamtschule sowie zahlreichen Grundschulen sind alle Bildungswege in der Einhardstadt verfügbar. Die Stadt wird sehr durch ihr lebendiges Vereinsleben geprägt, das sich vor allem zur Fastnachtszeit verdeutlicht. Nicht umsonst ist der Seligenstädter Rosenmontagszug einer der größten in der gesamten Region. Natürlich mangelt es auch nicht an zahllosen Sportangeboten in den verschiedenen Vereinen.
Seligenstadt liegt am östlichen Rand des Rhein-Main-Gebietes mit einer hervorragenden Verkehrsanbindung an die Autobahnen A3 und A45. Außerdem verfügt die Stadt über eine Bahnanbindung nach Hanau, Frankfurt, Groß-Umstadt sowie Darmstadt und Aschaffenburg. Der Frankfurter Flughafen ist mit dem Auto innerhalb von 25 Minuten über die A3 zu erreichen.
Grundschule 500 m | Realschule 1,50 km | Gymnasium 1,50 km | Autobahn 3 km | Zentrum 500 m
Die dargestellte Position der Immobilie ist nur eine ungefähre Angabe.






















